MMB防水密閉門說明書
MMB防水密閉門
MMB防水密閉門|水泵房防水密閉門|防水密閉門廠家直銷
MMB礦用密閉門用途
礦用密閉門主要用于井下主變電所和主排水泵房通往井底車場的通道內,均應設置,容易關閉,能防止水突然涌入.
礦用密閉門用于井下材料庫和材料發放硐室,起隔離作用,阻止沖擊波及產生的火焰、有毒氣體向外部巷道擴散,由總回風道排出。
礦用密閉門密封裝置
礦用密閉門是一種能增加氣密性的門。它的材料有木質、鋼質的。關鍵部件是密封裝置。
“QKB氣囊式快速密閉”是用來火災搶險、臨時封堵局部瓦斯積存或超限,控制局部高溫火點的快速封堵技術裝備。該氣囊式快速密閉屬于國內首創(已獲專利,專利號ZL 97 2 00747.4),對提高礦井的抗災能力,減少礦井因火災造成的重大經濟損失及人員傷亡具有重大的現實意義。該產品采用抗靜電阻燃橡膠材料加工制成,具有重量輕、攜帶方便、操作簡單、施工速度快的特點。
分類
根據密閉門所在通道鋪設軌與否,密閉門硐室可分為鋪軌和不鋪軌兩種形式。當硐室鋪軌時,在密閉門開啟一側的一節軌道,應設便于拆裝的活動軌。
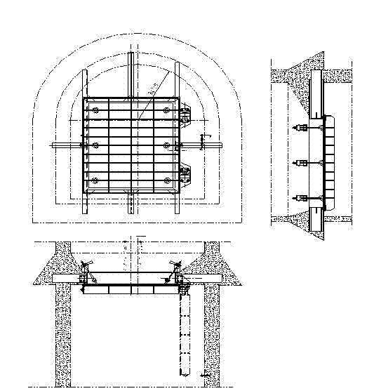
MMB系列礦用密閉門的結構組成
礦用密閉門由門扇、門框、拉緊裝置及門樞。
1 本密閉門門扇為平鋼板、井字筋板、圈梁等組焊而成
2 門框為槽鋼、工字鋼組合框架結構
3 礦用密閉門拉緊裝置為楔形滑塊楔緊
4 門樞采用滾動軸承支撐,關鍵部件是密封裝置。
MMB系列礦用密閉門的顯著特點
1.門體有足夠的強度,承壓能力達1.0MPa,能有效防止井下爆炸發生時產生的沖擊應力波。
2.有效的水、氣密封,門與門框間有功能各異的雙層密封,以確保無任何水氣滲漏。
3.提供可在門上明顯位置安裝的防爆、密封的多通道動力電纜、壓氣、供水和通訊節點。
4.外表光潔、美觀,平面密封表面做特殊防銹處理。
5.便于進出,可內外同時操控、手動快開和快閉門機構便于人員快速、多次進入和達到初始密閉的效果。
MMB系列礦用密閉門技術規格
密閉門最大承受壓力為98KPa,按硐口尺寸分為4個規格
序號 型號規格 圖號 重量kg
1 MMB1.4*1.8 B85-373(1) 1123
2 MMB1.6*1.8 B85-373(2) 1194
3 MMB1.8*2.0 B85-373(3) 1319
4 MMB2.1*2.0 B85-373(4) 1430
其它規格風門,可按用戶要求尺寸定做。
型號含義:MMB1.4*1.8
1.4(硐口凈通過寬度1400mm)
1.8(硐口凈通過高度1800mm)
MMB系列礦用密閉門工作環境
1、大氣壓力:80kPa~110kPa;
2、環境溫度:-30℃~40℃;
3、平均相對濕度≤95%(25℃);
4、具有甲烷、煤塵可爆性混合物的煤礦井下;
5、無足以腐蝕破壞金屬殼體及電器絕緣性的氣體;
6、水壓:0~3.5MPa。
MMB系列礦用密閉門注意事項
(1)檢查施工地點的瓦斯、二氧化碳等有害氣體的濃度。施工地點必須通風良好,瓦斯、二氧化碳氣體的濃度不超過《煤礦安全規程》的規定。
(2)檢查施工地點前后5m的頂板、巷幫的支護情況,發現問題及時匯報、處理,無隱患后方可施工。
(3)墻體周邊要重新掏槽見硬頂、硬幫并與煤巖接實;墻面平整無裂縫、重縫和空縫。掏槽時應注意以下幾點:
(4)需要在防火門、密閉門墻中通過電纜線路,在砌墻時要預留孔口位置,在有電纜通過時,要設過線管并按電纜懸掛間距排列整齊。
(5)防火門、密閉門墻體要用不燃性材料建筑,嚴密不漏風。用磚砌墻時,壓茬要錯開,橫縫要水平,排列必須整齊。按照1:3的灰、砂比例配制砂漿。
安裝要求:
門扇的安裝應在門框混凝土澆灌28天后進行。
門扇安裝后應與門框平面貼合良好,其局部允許間隙為:
當門孔寬度>1000mm時,允許間隙≤2mm;
當門孔寬度>2000mm時,允許間隙≤4mm;
分部間隙累計長度均不應大于總長度的20%。
產品維護:
(1)、門框、門扇、活門檻及其它零部件齊全并完好無損,所有金屬件面漆完整,無銹斑。
(2)、門扇、門框貼合良好,啟閉靈活。
(3)、密封條應保持完好并涂滑石粉保護,發現老化及時更換,各種傳動零部件及螺孔應每年至少進行一次注油、涂油。
我公司生產的礦用密閉門質量上乘,價格合理,是堅固有力的井下防護者。咨詢熱線:132 8008 2001 曹經理 卓力竭誠為您服務!


卓力工礦是國內知名MMB防水密閉門生產廠家,有豐富的經驗為客戶提供高品質的MMB防水密閉門及完善的售后服務,如果您想了解最新MMB防水密閉門價格或者更詳細信息,歡迎撥打服務熱線:13280082001 18605374511.或者聯系在線客服:
點擊這里、立刻咨詢;我們攜程為您服務!
常見問題:MMB防水密閉門發貨時間? MMB防水密閉門售后保障? MMB防水密閉門訂貨需要提供什么信息?
產品標簽:MMB防水密閉門|
水泵房防水密閉門|防水密閉門廠家直銷
|