24EJF-P型二位四通換向閥(40MPa)說明書
24EJF-P型二位四通換向閥(40MPa)
24EJF-P型二位四通換向閥(40MPa)|24EJF-P型換向閥工作原理
一、概述
24EJF-P型(原SA-V 型)二位四通換向閥是一種采用直流電機驅動閥芯移動,以開閉供油管道或轉換供油方向的一種集成化的換向控制裝置;即使在惡劣的工作條件下(如低溫或高粘度油脂),動作仍相當可靠。
24EJF-P型二位四通換向閥(40MPa)適用于公稱壓力為40MPa以下的干、稀油集中潤滑系統以及液壓系統的主支管路中,同時也可作二位四通,二位三通和二位二通三種型式使用。

二、技術參數
型號
|
公稱壓力Mpa
|
換向時間S
|
直流電機功率W
|
電源電壓V
|
直流電機扭矩N.m
|
重量kg
|
24EJF-P
|
40
|
0.5
|
10
|
-220
|
20
|
13
|
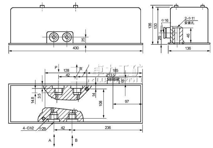
三、外形尺寸

四、工作原理
24EJF-P型二位四通換向閥(40MPa)主要由直流電機、限位開關、換向閥體,整流變壓器裝置等元件安裝于同一底板上并置于防護罩殼內組成。
系統中的電控箱發出換向信號(系統末端壓差開關發出)使直流電機作旋轉運動,并通過偏心輪帶動閥芯作直線往復運動。當閥芯從原位到達所需要的換向位置時,閥芯端部的擋板觸動限位開關動作,發出電信號至電控箱,責令直流電機停止旋轉,完成了換向過程。

五、使用說明
1、24EJF-P型二位四通換向閥(40MPa)應安裝在系統被控主、支管路的前端,且位于通風、 干燥便于檢查及周圍無運動機構干涉的部位。
2、當作二位二通使用時,須把出油口“B”和回油口“R”封堵。
3、當作二位三通使用時,須把出油口“B”封堵。
4、電控接線按上圖原理連接。
六、常見故障及排除方法
1、換向閥不換向。
可能無換向信號輸入電機,線腳焊接脫落;電機軸與偏心輪松動未緊固;閥腔內進入雜質滑芯卡死等原因,查明后排除即可。
2、滑芯二端漏油。
主要是二端密封圈損壞引起,可能是密封圈庫存久或長時間使用已老化,更換密封圈即可。
卓力工礦是國內知名24EJF-P型二位四通換向閥(40MPa)生產廠家,有豐富的經驗為客戶提供高品質的24EJF-P型二位四通換向閥(40MPa)及完善的售后服務,如果您想了解最新24EJF-P型二位四通換向閥(40MPa)價格或者更詳細信息,歡迎撥打服務熱線:13280082001 18605374511.或者聯系在線客服:
點擊這里、立刻咨詢;我們攜程為您服務!
常見問題:24EJF-P型二位四通換向閥(40MPa)發貨時間? 24EJF-P型二位四通換向閥(40MPa)售后保障? 24EJF-P型二位四通換向閥(40MPa)訂貨需要提供什么信息?
產品標簽:24EJF-P型二位四通換向閥(40MPa)|
24EJF-P型換向閥工作原理
|